CD set for a medical clinic and pharmacy within a fixed building envelope
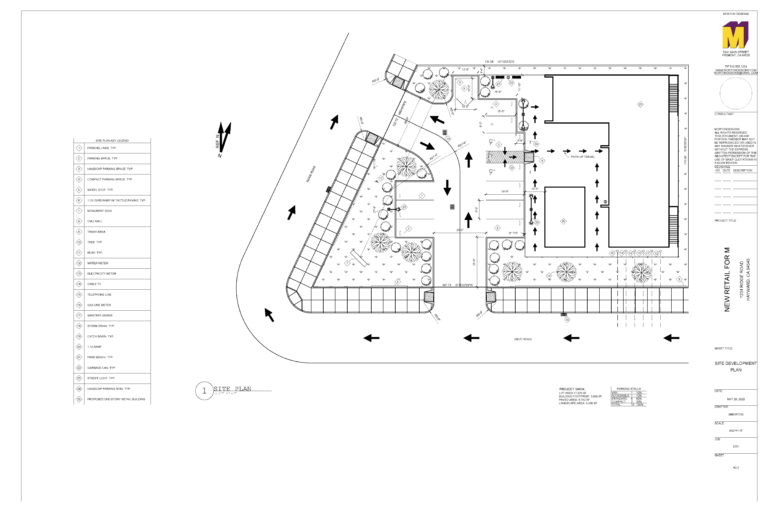
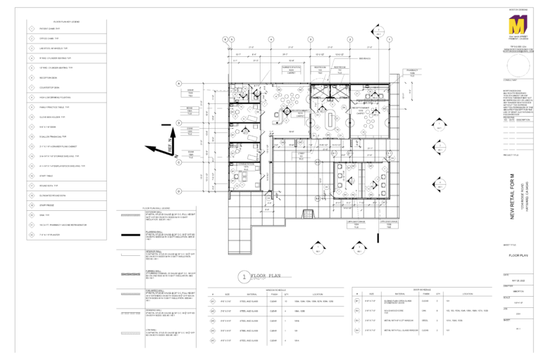
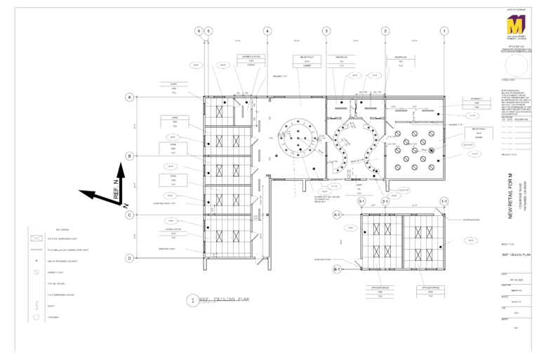
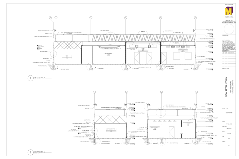
Completed in Spring 2022 at Chabot College for my AA and AS Architecture, this commercial project organizes a clinic and pharmacy across two buildings totaling 3,868 SF on a 17,926 SF lot. Working within a predetermined footprint and 21’ structural grid, the design establishes functional adjacencies, ADA-compliant circulation, and clear patient flow. The result is a coordinated CD-level documentation set, integrating site, architectural, and interior detailing.
Read more
The larger L-shaped building houses the primary public functions. Upon entry, visitors move through a lobby that directs circulation clearly toward shared accessible restrooms and into either the clinic or pharmacy. The clinic includes a reception area, nurses’ station, staff room, consultation room, and three exam rooms arranged for operational efficiency. The pharmacy balances a welcoming reception and waiting space with a compact, secure back-of-house dispensing area.
The secondary rectangular building supports both businesses equally, divided into mirrored storage and office zones. This separation allows the main building to prioritize patient experience while administrative logistical functions remain efficient but unobtrusive.
Produced in AutoCAD, the construction document set demonstrates accessibility planning, careful attention to healthcare workflow, and the integration of architectural and interior systems within an inflexible structural framework.
Check out images







