CD set for a two-story single-family residence
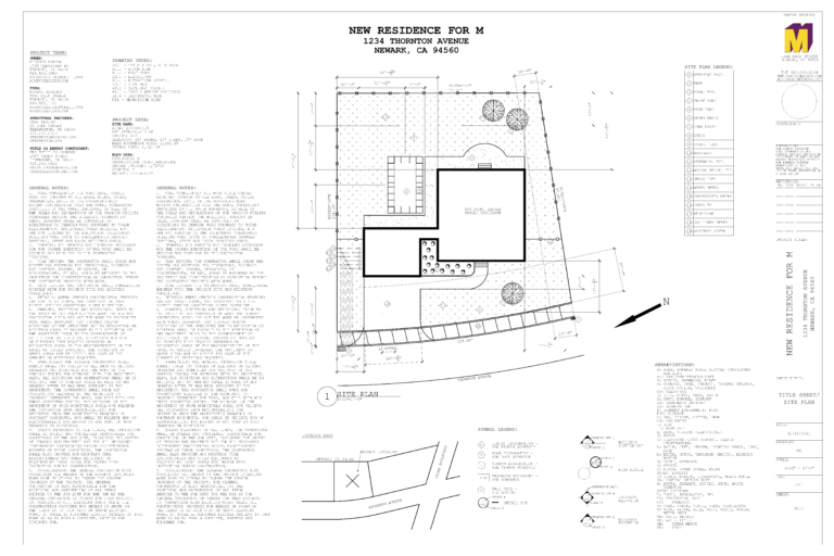
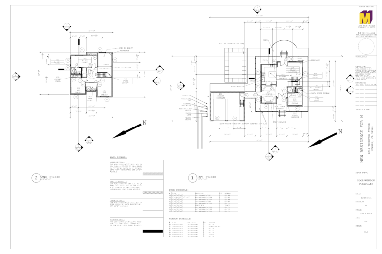
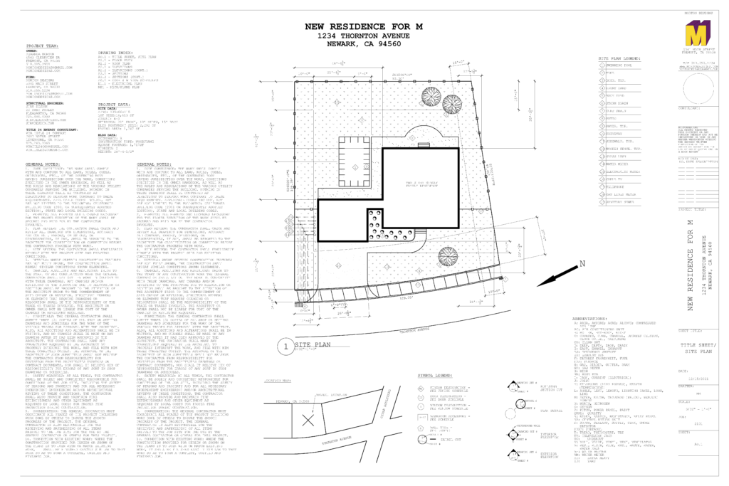
Completed in Fall 2021 at Chabot College for my AA and AS Architecture, this construction document set presents a 1,717 SF single-family residence designed for a 10,613 SF lot. The two-story home is organized around a central foyer and double-height great room, with a wraparound porch connecting the house to a two-car garage.
Read more
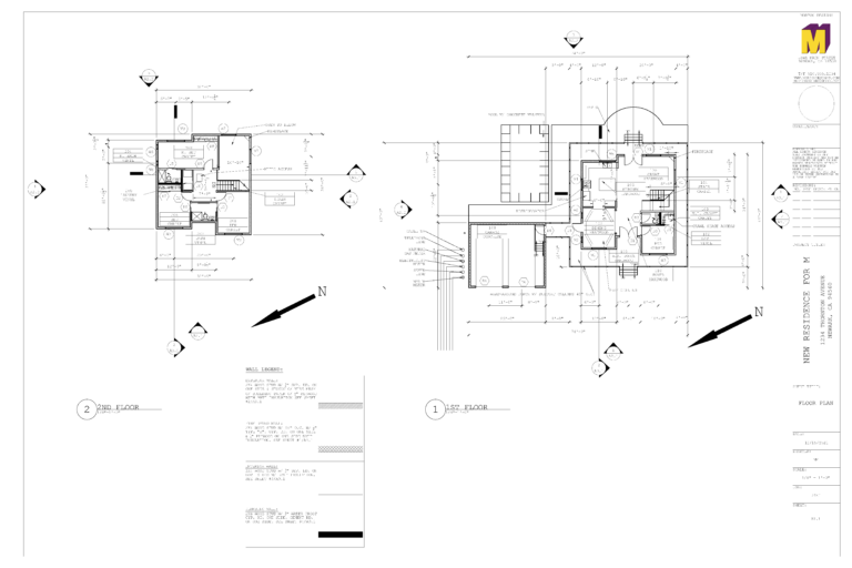
The design explores traditional residential planning with spatial hierarchy and livability at its core. Entry occurs through a raised front porch and double doors into a foyer that anchors the main floor. Public and semi-private spaces branch from this point: a dining room with tray ceiling to the left and small bedroom with walk-in closet and adjacent powder room to the right. Deeper into the plan, a U-shaped kitchen supports daily function, while a dramatic double-height great room with fireplace creates vertical openness and visual connection to the second floor.
Upstairs, circulation is compact and efficient. A centrally located laundry closet supports the bedrooms, while the main suite occupies one side of the plan with its own closet and bathroom. Opposite, a secondary bedroom and den share a Jack-and-Jill bath, offering flexibility for family living. Material transitions between hardwood, carpet, and vinyl, reinforce functional zones within the home.
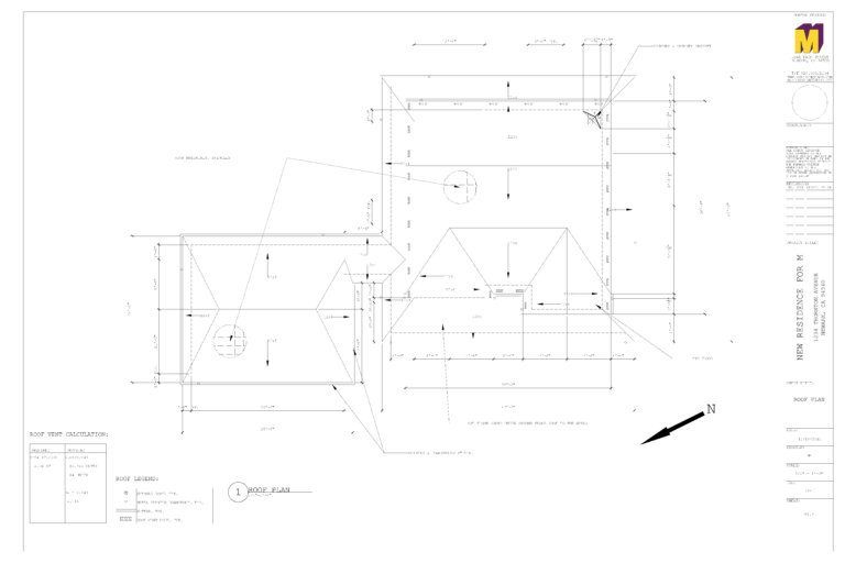
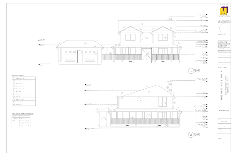
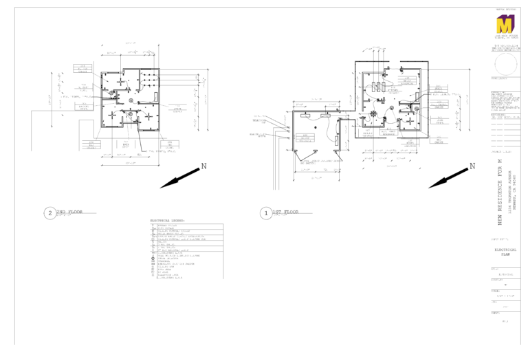
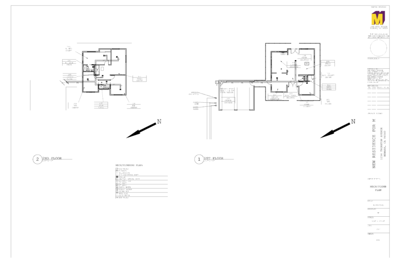
The project was developed to construction document level in AutoCAD, including site planning, floor and roof plans, elevations, building sections, schedules, and coordinated electrical and mechanical/plumbing layouts.
Check out images








